金閣寺東の町家

 

築98年の京町家を改修した住宅です。
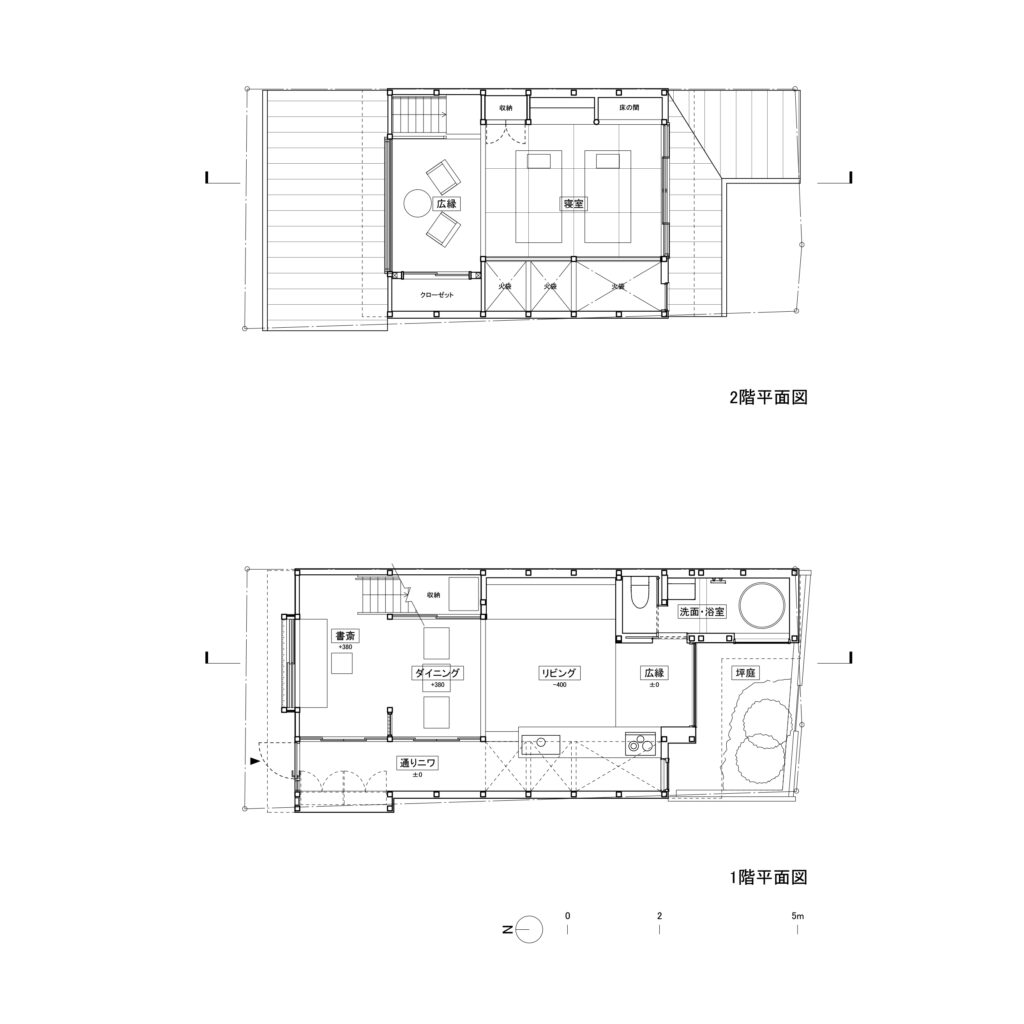
かつて西陣には織物職人の工房兼住居が建ち並び、この町家もその一つでした。新しい家主も自宅を仕事場としますが、その職住一体の暮らしは西陣の歴史に深く根付くものです。ならば町家の姿形だけでなく、生活と商いが混じり合う豊かさも残したいと考えました。ミセノマは仕事場に、ダイドコはキッチンにといったように、往時の使い方もできるだけ引き継いでいます。
西陣町家の特徴である背の高い織機を置くために掘り下げられた土間は、形はそのままにモルタルで包みリビングとしました。高さの違う床が、ひとつながりの空間の中に小さな居場所を生み出しています。糸屋格子から光がにじむ書斎、灯りのともる小さな食卓、そして竪穴住居のような半地下のリビング。それらを季節や気分にあわせて渡り歩くような、気ままで懐かしい住まいです。

This residence is a renovated Kyo-machiya built 98 years ago. Nishijin was once lined with workshops and residences for textile craftsmen, and this Machiya was one of them. In addition, the client works remotely from his home. In a sense, this combination of work and home represents an everyday culture that is deeply rooted in the history of Nishijin. If so, we would like to inherit not only the appearance of Machiya but also the prosperity and richness of a lifestyle that combines life and work. We preserve the roles of the rooms and the lifestyle, such as the former Misenoma being used as a workplace and the Daidoko being used as a kitchen.
The dirt floor dug out to house the tall loom is a symbol of Nishijin Machiya. We decided to wrap this space in mortar and call it the living room. Changing the floor height creates a small place in a connected space —a study with light shining through the Itoya latticework, a small dining room with a light on, and a living room that has been dug into the ground like a pit dwelling. It is a freewheeling and nostalgic home where he can move between them depending on the season and mood.