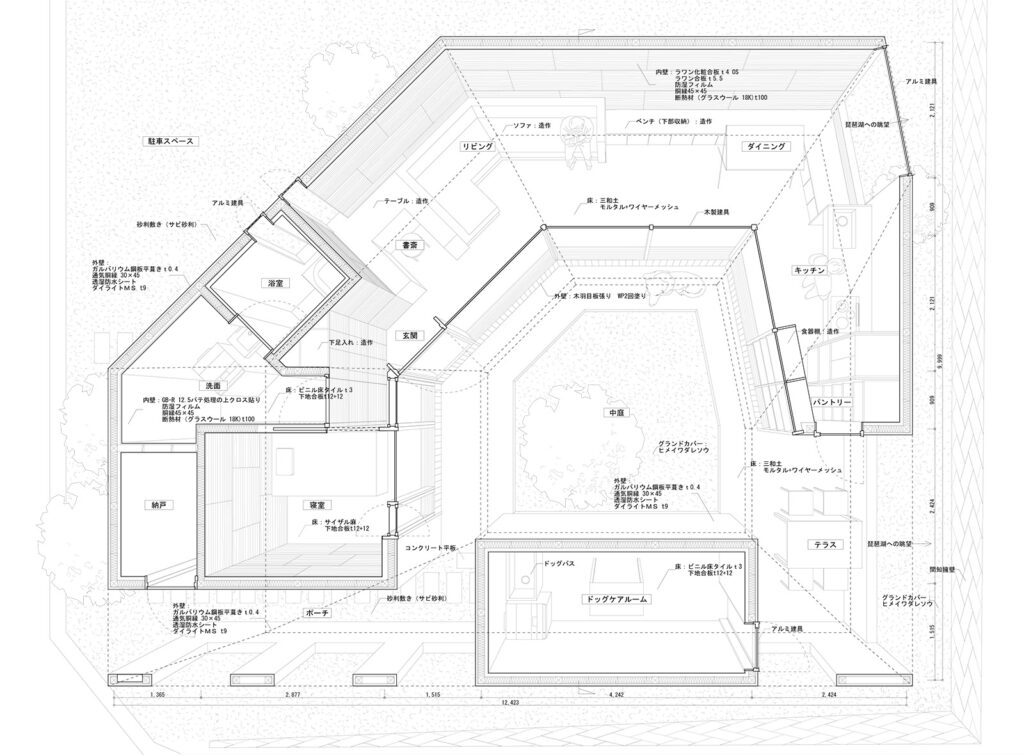
和邇のコート・ハウス

 

琵琶湖を望む高台の住宅です。愛犬家のお施主さんから、犬と暮らしやすい住まいが求められました。
周囲の住宅からプライバシーを確保しつつ、愛犬たちと開放的に暮らせるよう、中庭のある平屋としました。
琵琶湖を一望できる小さな中庭は、まるでリビングの一部のような、居心地の良い空間になりました。
室内はほぼワンルームですが、中庭を囲むように折れ曲がることでゆるやかに区切られ、色々な居場所をつくっています。
朝は琵琶湖を望むテーブルでコーヒーを飲み、午後は中庭のそばの大きなソファで昼寝をする・・・といったように、季節や時間にあわせて好きな居場所を選べる、おおらかで気楽な雰囲気の住まいを目指しました。

We designed a house on a hill overlooking Lake Biwa. The owner who is a dog lover required to enjoy living with his dogs. We chose a single-story house with a courtyard so that he could stay outdoors while preserving privacy of the house from the neighborhood. The courtyard overlooking Lake Biwa has become a cozy, warm and luxurious outdoor space with an indoor atmosphere. The interior of one room is somewhat divided by bending around the courtyard, creating a slightly different space. We would be happy if a favorite place is chosen according to the season and time, creating a generous and comfortable living atmosphere like drinking coffee at a table overlooking Lake Biwa in the morning and taking a nap on a large sofa near the courtyard in the afternoon.